Обяви 0 За нас Контакти
Продава САМОСТОЯТЕЛНА СГРАДА
област Добрич, гр. Каварна
При запитване
История на цената
Коригирана в 12:41 на 25 юни, 2025 год.
Обявата е посетена 88 пъти.
Площ:
8905 m2
Газ:
ДА
ТEЦ:
ДА
Строителство:
Тухла,

Описание на имота:


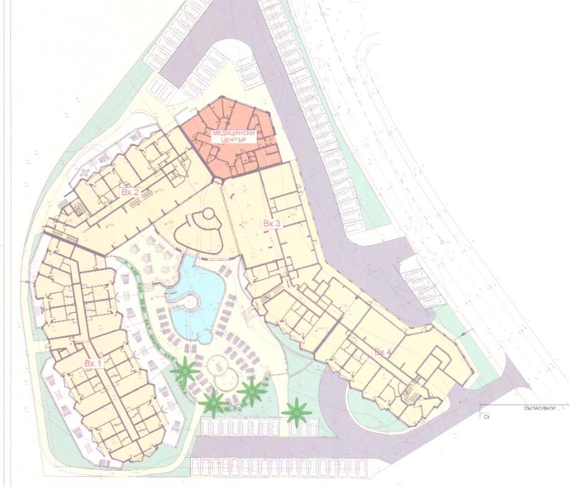
ДО БРЕГА НА МОРЕТО И ПЛАЖА На Вашето внимание предлагаме комплекс от сгради с медицински център изградени на груб строеж. РЗП 10700м2. Дворното място е с площ 8905м2. В него са изградени пет сгради, със самостоятелни входове, на конструктивни фуги. Предвидени са асансьори във всяка сграда. Общо комплекса съдържа 101 апартамента, 30 ателиета, 2 магазина, ресторант с площ от 543м2, СПА център, зъболекарски кабинет, офис, фризьорски салон, кафе, медицински център, 83 открити п.места и 46 закрити паркоместа, закрит басейн 230м2. За комплекса има издадени Разрешително за строеж и документация. Има възможност и за поетапно завършване на отделните сгради. Апартаментите са двустайни с дневни около 30м2 и спални около 12м2. Всеки един апартамент е с тераса. Целия комплекс представлява добра възможност за реализация на идеи в сферата на семейния туризъм,а също и на бизнес идеи за рехабилитация и възстановяване. За повече подробности тел. 0888671163 Марияна Иванова
Особености
Тухла
За контакт:
0888671163
Брокер:
Марияна Иванова
0888 671163
Още оферти от брокера: Продава | Дава под наем | Купува | Наема
Агенция:
ПАЛАД НЕДВИЖИМИ ИМОТИ
052/600511, 052/630333
ПАЛАД НЕДВИЖИМИ ИМОТИ logo
Медал за прослужено време
В imot.bg от 2002 г.
palad.imot.bg
Адрес:
област Варна, гр. Варна, бул.'Владислав Варненчик' 8, ет.1
http://www.palad.eu
ИЗПРАТИ ЗАПИТВАНЕ
ИЗПРАТИ ЗАПИТВАНЕТО

Продава САМОСТОЯТЕЛНА СГРАДА
област Добрич, гр. Каварна
Обява: 1t161846549753883

При запитване
История на цената

ЗАПАЗИ ОБЯВАТА

Местоположение: област Добрич, гр. Каварна